Druki, wzory, deklaracje i formularze do pobrania

Obowiązki urzędowe wypełniają się w fillup

Księgi Wieczyste druki do wypełnienia

KW-WPIS (od 14.07.2023r.) Wniosek o wpis w księdze wieczystej
KW-WPIS (od 14.07.2023r.) Wniosek o wpis w księdze wieczystej
Ten wzór formularza KW-WPIS obowiązuje od dnia 14.07.2023r. Składając wniosek o wpis w księdze wieczystej należy wyraźnie zaznaczyć jakie jest nasze żądanie wpisu: odłączenie / wyodrębnienie z księgi wieczystej części nieruchomości i przyłączenie jej do innej istniejącej już
36 181
Wersja: 14.07.2023
KW-ZAD (od VII 2016) Załącznik – Żądanie wpisu w księdze wieczystej
KW-ZAD (od VII 2016) Załącznik – Żądanie wpisu w księdze wieczystej
Ten wzór formularza KW-ZAD obowiązuje od dnia 01.07.2016 r. Formularz stanowi załącznik do formularzy: "KW-ZAL Wniosek o założenie księgi wieczystej" i "KW-WPIS Wniosek o wpis w księdze wieczystej". Dołącza się go jeżeli wnioskodawca wnosi o wpis, zmianę lub wykreślenie wi
8917
Wersja: 30.03.2016
KW-ZAL (od 14.07.2023r.) Wniosek o założenie księgi wieczystej
KW-ZAL (od 14.07.2023r.) Wniosek o założenie księgi wieczystej
Ten wzór formularza KW-ZAL obowiązuje od dnia 14.07.2023 r. Przy użyciu tego formularza możemy złożyć wniosek o założenie księgi wieczystej nieruchomości gruntowej, nieruchomości budynkowej, nieruchomości lokalowej lub spółdzielczego własnościowego prawa do lokalu. Jeśli jest z
6780
Wersja: 14.07.2023
KW-WU (od VII 2016) Załącznik – Wnioskodawca/uczestnik postępowania
KW-WU (od VII 2016) Załącznik – Wnioskodawca/uczestnik postępowania
Ten wzór formularza KW-WU obowiązuje od dnia 01.07.2016 r. Formularz KW-WU stanowi załącznik do formularzy wniosków: "KW-ZAL Wniosek o założenie księgi wieczystej" i "KW-WPIS Wniosek o wpis w księdze wieczystej". Załącznik KW-WU należy wypełnić i dołączyć do głównego wniosku w
5839
Wersja: 30.03.2016
KW-PP Załącznik – Pełnomocnik/przedstawiciel ustawowy
KW-PP Załącznik – Pełnomocnik/przedstawiciel ustawowy
Jeżeli w imieniuwnioskodawcy/ uczestnika postępowania występuje pełnomocnik lub przedstawiciel ustawowy należy do głównego wniosku wypełnić i załączyć formularz "KW-PP Pełnomocnik / przedstawiciel ustawowy". W przypadku, gdy w imieniuwnioskodawcy/ uczestnika postępowania występu
5300
Wersja: 15.11.2012
KW-WGLAD   Wniosek o wgląd do księgi wieczystej / wydanie wydruku księgi wieczystej
KW-WGLAD Wniosek o wgląd do księgi wieczystej / wydanie wydruku księgi wieczystej
Chcąc uzyskać możliwość wglądu do wybranej księgi wieczystej lub otrzymać wydruk z danej księgi należy wypełnić formularz "KW-WGLAD Wniosek o wgląd do księgi wieczystej / wydanie wydruku księgi wieczystej". Pouczenie: Formularz należy wypełnić czytelnie, drukowanymi literami,
5037
Wersja: 23.10.2003
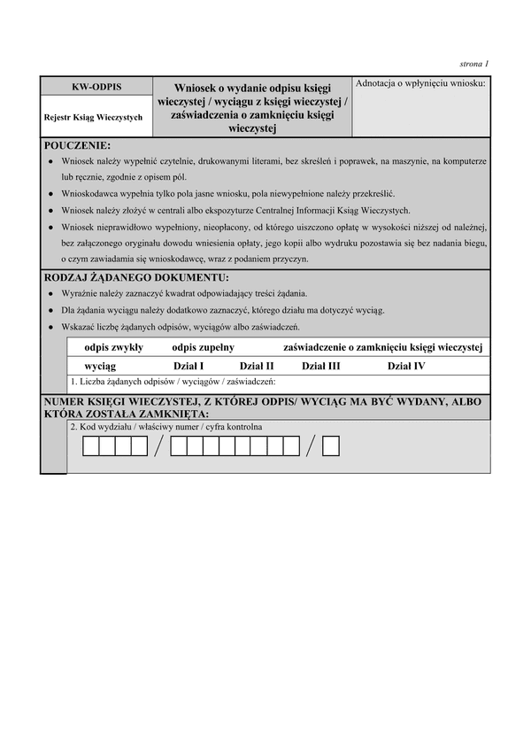
KW-ODPIS (od 2025) Wniosek o wydanie odpisu księgi wieczystej/zaświadczenia o zamknięciu księgi wieczystej
KW-ODPIS (od 2025) Wniosek o wydanie odpisu księgi wieczystej/zaświadczenia o zamknięciu księgi wieczystej
Chcąc otrzymać odpis księgi wieczystej w wersji papierowej lub zaświadczenie o zamknięciu danej księgi wieczystej należy wypełnić i złożyć wniosek KW-ODPIS. W formularzu należy wskazać czy wnioskujemy o wydanie odpisu zwykłego, zupełnego, czy o wydanie zaświadczenia o zamknięciu
4546
Wersja: 02.06.2025
KW-OZN Załącznik – Oznaczenie działki ewidencyjnej
KW-OZN Załącznik – Oznaczenie działki ewidencyjnej
Formularz KW-OZN stanowi załącznik do formularza wniosku "KW-ZAL Wniosek o założenie księgi wieczystej". Wypełnia się go wówczas, gdy składa się wniosek o założenie księgi wieczystej dla nieruchomości gruntowej, w skład której wchodzi kilka działek ewidencyjnych. Na załączonym f
2034
Wersja: 15.11.2012