
Szacowany czas czytania: 5 minut
Deklaracja DN-1 to po prostu formularz, na którym zgłasza się nieruchomości podlegające opodatkowaniu podatkiem od nieruchomości tutaj, w Polsce. Urzędy gminy czy miasta używają go, by ustalić, ile podatku trzeba zapłacić za dany rok. Składając DN-1, informujesz urząd o posiadanych gruntach, budynkach i budowlach, ich metrażu oraz czy przysługują ci jakieś ulgi podatkowe. Na podstawie tej deklaracji podmioty zobowiązane same obliczają i deklarują należny podatek. Co ciekawe, jeśli wyliczony podatek za cały rok nie przekracza 100 zł, płaci się go jednorazowo, w terminie płatności pierwszej raty.
Deklarację DN-1 muszą składać przede wszystkim podmioty, które nie są osobami fizycznymi. Chodzi tu o:
Co ważne, deklarację DN-1 muszą też złożyć osoby fizyczne, ale tylko w konkretnym przypadku: gdy są współwłaścicielami lub współposiadaczami nieruchomości (ziemi, budynku, budowli) razem z firmą (osobą prawną) lub inną jednostką bez osobowości prawnej. Przy współwłasności urząd może domagać się zapłaty całego podatku solidarnie od każdego ze współwłaścicieli.
Zasadniczo, deklarację DN-1 na dany rok podatkowy trzeba złożyć do 31 stycznia tego roku. Oznacza to, że do końca stycznia zobowiązane podmioty muszą dać znać odpowiedniemu urzędowi (wójtowi, burmistrzowi lub prezydentowi miasta) o stanie swoich nieruchomości na dzień 1 stycznia.
Jest jednak wyjątek. Jeśli w ciągu roku coś się zmieni i wpłynie to na wysokość podatku (na przykład kupisz nową nieruchomość, zaczniesz inaczej wykorzystywać budynek, sprzedasz kawałek gruntu), masz obowiązek złożyć korektę deklaracji lub nowy formularz w ciągu 14 dni od dnia, w którym ta zmiana nastąpiła.
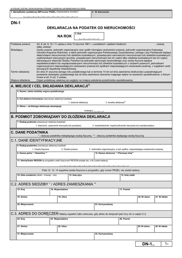
Wypełnienie DN-1 wymaga dokładności i podania wszystkich potrzebnych danych. Formularz jest podzielony na sekcje, które najlepiej wypełniać czytelnie, drukowanymi literami albo elektronicznie. Najważniejsze jest precyzyjne podanie informacji o podatniku i o samej nieruchomości.
Tutaj trzeba szczegółowo opisać posiadane nieruchomości. Należy podać typ nieruchomości (grunt, budynek, budowla), jej dokładną powierzchnię użytkową lub podstawę opodatkowania (np. wartość dla budowli). Trzeba też wskazać odpowiednią stawkę podatkową, która obowiązuje w danej gminie dla konkretnego rodzaju nieruchomości. Na tej podstawie wylicza się należny podatek. Te informacje często wpisuje się na osobnych załącznikach (ZDN-1, ZDN-2).
W tej sekcji podajesz pełne dane identyfikacyjne: nazwę firmy lub imię i nazwisko (dla osób fizycznych), adres siedziby lub zamieszkania. Bardzo ważne jest, aby podać aktualny adres do doręczeń, jeśli jest inny niż adres główny – to tam urząd będzie wysyłał wszystkie pisma dotyczące podatku. Warto też dodać dane kontaktowe (numer telefonu, e-mail) osoby przygotowującej deklarację, co ułatwi urzędowi kontakt w razie pytań. Pamiętaj, aby wpisać dokładną liczbę dołączonych załączników, takich jak ZDN-1 i ZDN-2, co potwierdzi kompletność dokumentacji.
Do głównego formularza DN-1 trzeba obowiązkowo dołączyć załączniki, które zawierają szczegółowe informacje o nieruchomościach. Standardowo są to dwa typy: Załącznik ZDN-1, gdzie dokładnie wykazujesz wszystkie nieruchomości podlegające opodatkowaniu (grunty, budynki, budowle) podając ich rodzaj, położenie, powierzchnię lub wartość i przypisaną stawkę podatku z uchwały gminy. Drugi to Załącznik ZDN-2, na którym wykazujesz nieruchomości lub ich części zwolnione z podatku na mocy ustawy lub uchwały gminy, podając podstawę prawną zwolnienia i szczegóły dotyczące tych obiektów.
Wypełnioną deklarację DN-1 wraz z załącznikami można dostarczyć do odpowiedniego urzędu (wójta, burmistrza, prezydenta miasta) na kilka sposobów:
Korektę deklaracji DN-1 trzeba złożyć, jeśli po jej wysłaniu okaże się, że zawiera błędy (np. pomyłka w obliczeniach, zły metraż) albo gdy zmieniły się okoliczności wpływające na wysokość podatku. Takie zmiany to na przykład kupno lub sprzedaż nieruchomości, zmiana sposobu jej wykorzystania (np. z mieszkania na biuro), zakończenie budowy czy zmiana wartości budowli. Korektę składasz w ciągu 14 dni od dnia, gdy nastąpiła zmiana lub gdy zauważyłeś błąd w pierwotnej deklaracji.
Jeśli nie złożysz deklaracji DN-1 na czas albo podasz w niej nieprawdziwe informacje, możesz narazić się na sankcje karne. Urząd podatkowy może rozpocząć postępowanie, aby samodzielnie ustalić wysokość podatku. Jeśli znajdzie nieprawidłowości lub stwierdzi brak deklaracji, wyda decyzję określającą kwotę do zapłaty. Co więcej, za unikanie płacenia podatków lub podawanie nieprawdy w deklaracji grożą sankcje karnoskarbowe, w tym grzywny. Dlatego tak ważne jest, by składać DN-1 terminowo i rzetelnie – to najlepszy sposób na uniknięcie problemów z urzędem gminy czy miasta.
Czym dokładnie jest deklaracja DN-1?
DN-1 to oficjalny formularz służący do zgłaszania posiadanych nieruchomości (gruntów, budynków, budowli) do opodatkowania podatkiem od nieruchomości w Polsce. Na jego podstawie urząd gminy/miasta określa wysokość należnego podatku.
Kto musi składać deklarację DN-1?
Głównie osoby prawne (np. spółki z o.o., fundacje), jednostki organizacyjne bez osobowości prawnej (np. spółki jawne) oraz, w specyficznej sytuacji, osoby fizyczne będące współwłaścicielami nieruchomości z takim podmiotem.
Jaki jest główny termin na złożenie DN-1?
Deklarację na dany rok podatkowy należy złożyć do 31 stycznia tego roku, zgłaszając stan nieruchomości na dzień 1 stycznia.
Kiedy trzeba złożyć korektę DN-1?
Korektę należy złożyć w ciągu 14 dni od dnia wystąpienia zdarzenia mającego wpływ na wysokość podatku (np. nabycie/zbycie nieruchomości, zmiana sposobu użytkowania) lub od dnia zauważenia błędu w pierwotnej deklaracji.
Co grozi za niezłożenie DN-1 lub podanie błędnych danych?
Niezłożenie deklaracji w terminie lub podanie nieprawidłowych informacji może skutkować wszczęciem postępowania podatkowego przez urząd, wydaniem decyzji określającej podatek oraz nałożeniem sankcji karnoskarbowych, w tym grzywny.
Obwieszczenie Marszałka Sejmu Rzeczypospolitej Polskiej z dnia 16 maja 2019 r. w sprawie ogłoszenia jednolitego tekstu ustawy o podatkach i opłatach lokalnych (Dz.U. 2019 poz. 1170) Rozporządzenie Ministra Finansów z dnia 30 maja 2019 r. w sprawie wzorów informacji o nieruchomościach i obiektach budowlanych oraz deklaracji na podatek od nieruchomości (Dz.U. 2019 poz. 1104) - załącznik nr 5
PAMIĘTAJ! Gdy wypełnisz formularz - przeczytaj go uważnie w wersji ostatecznej lub skonsultuj się ze specjalistą! Udostępnione przez nas wzory druków, formularzy, pism, deklaracji lub umów należy zawsze właściwie przetworzyć, uzupełnić lub dopasować do swojej sytuacji.
Pamiętaj, że podpisując dokument kształtujesz nim swoje prawa lub obowiązki, zatem zachowaj należytą uwagę przy zmianach i jego wypełnianiu. Ze względu na niepowtarzalność każdej czynności, samodzielnie lub na podstawie opinii specjalisty musisz ocenić, czy wykorzystany formularz zastał zastosowany przez Ciebie odpowiednio do stanu faktycznego, prawnego lub zamierzonego celu.
Dołącz do programu resellerskiego i zostań specjalistą od przyjaznych formularzy, e-deklaracji i e-administracji, ponieważ fillup to formalności wypełnione.