
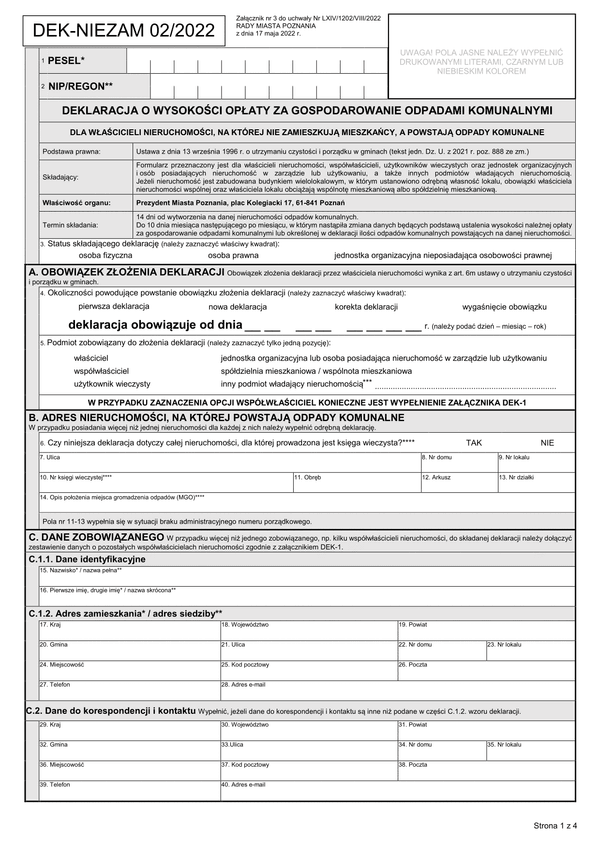
Deklarację o wysokości opłaty za gospodarowanie odpadami komunalnymi składają właściciele nieruchomości, a przez właściciela ustawodawca rozumie także współwłaścicieli, użytkowników wieczystych oraz jednostki organizacyjne i osoby posiadające nieruchomości w zarządzie lub użytkowaniu, a także inne podmioty władające nieruchomością (np. na podstawie umowy najmu, dzierżawy itd.)
Ponadto, jeżeli nieruchomość jest zabudowana budynkiem wielolokalowym, w którym ustanowiono odrębną własność lokalu, obowiązki właściciela nieruchomości wspólnej oraz właściciela lokalu obciążają wspólnotę mieszkaniową albo spółdzielnię mieszkaniową.
Dla nieruchomości zamieszkanych obowiązek złożenia pierwszej deklaracji pojawia się w momencie zamieszkania na nieruchomości pierwszego mieszkańca, dla nieruchomości, na której nie zamieszkują mieszkańcy, a powstają odpady komunalne obowiązek pojawia się wraz z rozpoczęciem wytwarzania odpadów komunalnych. Na złożenie deklaracji właściciel nieruchomości ma 14 dni.
W przypadku zmiany danych będących podstawą ustalenia opłaty za gospodarowanie odpadami komunalnymi np. zwiększenie/zmniejszenie liczby osób zamieszkujących na nieruchomości lub zwiększenie/zmniejszenie ilości powstających odpadów komunalnych, należy złożyć nową deklarację w terminie do 10 dnia miesiąca następującego po miesiącu, w którym nastąpiła zmiana.
Właściciel nieruchomości nie może złożyć deklaracji zmniejszającej wysokości zobowiązania z tytułu opłaty za gospodarowanie odpadami komunalnymi za okres wsteczny, z wyjątkiem przypadku, jeżeli właściciel nieruchomości złoży nową deklarację zmniejszającą wysokość zobowiązania z tytułu opłaty za gospodarowanie odpadami komunalnymi w związku ze śmiercią mieszkańca w terminie do 6 miesięcy od dnia tego zdarzenia.
Ustawa z dnia 13 września 1996 r. o utrzymaniu czystości i porządku w gminach (tekst jedn. Dz. U. z 2021 r. poz. 888 ze zm.)
PAMIĘTAJ! Gdy wypełnisz formularz - przeczytaj go uważnie w wersji ostatecznej lub skonsultuj się ze specjalistą! Udostępnione przez nas wzory druków, formularzy, pism, deklaracji lub umów należy zawsze właściwie przetworzyć, uzupełnić lub dopasować do swojej sytuacji.
Pamiętaj, że podpisując dokument kształtujesz nim swoje prawa lub obowiązki, zatem zachowaj należytą uwagę przy zmianach i jego wypełnianiu. Ze względu na niepowtarzalność każdej czynności, samodzielnie lub na podstawie opinii specjalisty musisz ocenić, czy wykorzystany formularz zastał zastosowany przez Ciebie odpowiednio do stanu faktycznego, prawnego lub zamierzonego celu.
Dołącz do programu resellerskiego i zostań specjalistą od przyjaznych formularzy, e-deklaracji i e-administracji, ponieważ fillup to formalności wypełnione.